Architekt DI Rüdiger Köhler

Staatlich befugter und beeideter Ziviltechniker ZT-Logo Allgemein beeideter und gerichtlich zertifizierter Sachverständiger SV-Logo
Professor an der Camillo-Sitte-Lehranstalt - HTL Bautechnik Wien

ARCHITEKTURBÜRO KÖHLER

www.archkoehler.at

Wohnbauten

Voriges Projekt | Nächstes Projekt

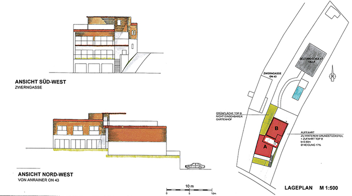
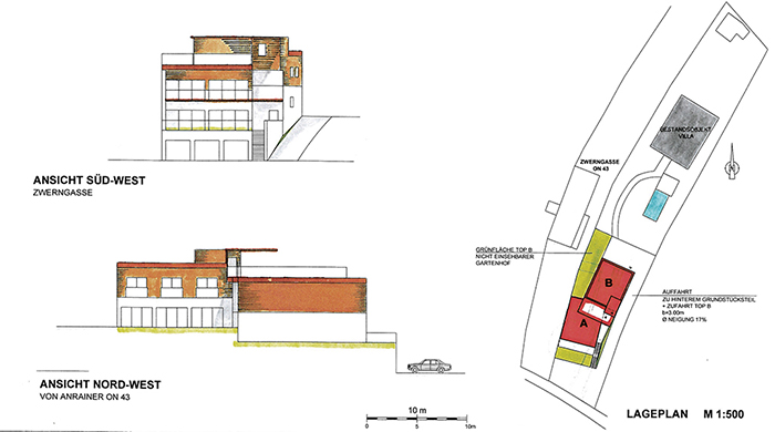
Zubau Doppelhaus und Sanierung Villa

Im vorderen Teil des Grundstücks werden neue Wohnungen errichtet. Unter Ausnutzung der Hanglage werden zwei voneinander unabhängige Wohnungen mit privaten, zugeordneten und jeweils uneinsehbaren Freiflächen geschaffen.
Von der Straßenebene werden niveaugleich Garagen für das verbleibende Bestandsobjekt (Villa im hinteren Grundstücksteil) und die neuen Wohneinheiten erschlossen.
Das Dach dient teilweise als niveaugleiche Terrasse in der Hauptnutzungsebene des dahinter angeordneten Gebäudes Top A. Das dahinter und dem Hang folgend ca. ein halbes Geschoß höher angeordnete Gebäude Top B wird versetzt angeordnet, somit entsteht ein uneinsehbarer nach Westen orientierter Eigengarten an der linken Grundstücksgrenze.

Staatlich befugter und beeideter Ziviltechniker ZT-Logo

Allgemein beeideter und gerichtlich zertifizierter Sachverständiger SV-Logo

Professor an der Camillo-Sitte-Lehranstalt - HTL Bautechnik Wien SV-Logo