Architekt DI Rüdiger Köhler

Staatlich befugter und beeideter Ziviltechniker ZT-Logo Allgemein beeideter und gerichtlich zertifizierter Sachverständiger SV-Logo
Professor an der Camillo-Sitte-Lehranstalt - HTL Bautechnik Wien

ARCHITEKTURBÜRO KÖHLER

www.archkoehler.at

Althaussanierungen – Adaptierungen – Dachgeschoßausbauten

Voriges Projekt | Nächstes Projekt

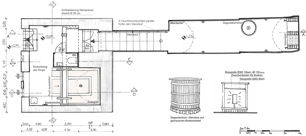
Presshaus Putzing

Das bestehende und nicht mehr verwendete Presshaus am "Hoadweg" wurde unter möglichstem Erhalt seines Charakters und Bestandes für Freizeitzwecke adaptiert.
Die beiden straßenseitigen Fenster wurden zu einer einheitlichen Größe adaptiert und die Dachdeckung erneuert. Der Bestand wurde an der hangseitigen Rückseite des Objektes im Sockelbereich abgedichtet und eine Drainagierung zur Seite wurde vorgenommen.
Im Presshaus wurde eine WC-Zelle installiert. Unter dem Pressbalken in einem Gewölbe befindet sich nun eine erweiterbare Sitz- und Essgelegenheit an die eine Kochnische anschließt.
Der Weinkeller schafft mittels indirekter Seitenbeleuchtung und einem Degustationstisch aus dem ehemaligen Pressfass eine angenehme Atmosphäre.

Staatlich befugter und beeideter Ziviltechniker ZT-Logo

Allgemein beeideter und gerichtlich zertifizierter Sachverständiger SV-Logo

Professor an der Camillo-Sitte-Lehranstalt - HTL Bautechnik Wien SV-Logo